収益物件/マンション 京都市伏見区桃山町山ノ下
所在地
京都市伏見区桃山町山ノ下
1,980万円
81.00m²
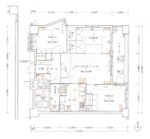
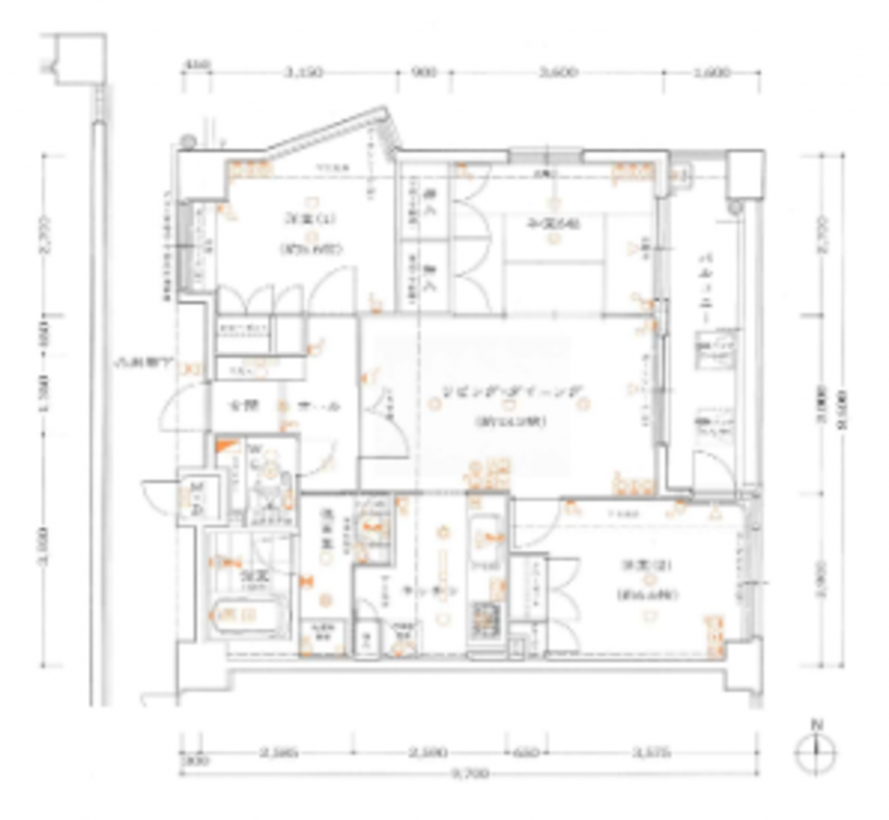
3LDK
◆オーナーチェンジ物件
◆7階建て4階部分
月々の
支払例
支払例
万円
年
%
円
※京都銀行/借入金1,980万円、返済期間35年、金利0.775%変動金利)の場合
※審査により金利は変わる可能性があります。
物件概要
- 交通
-
京都市営地下鉄東西線 六地蔵駅 まで 徒歩11分
京阪宇治線 六地蔵駅 まで 徒歩12分
JR奈良線 六地蔵駅 まで 徒歩14分
- 専有面積
- 81.00㎡
- バルコニー
-
9.12㎡
(東側)
- 所在階/階数
- 4階/7階
- 築年数
-
2003年
(平成15)
5月
築22年 - 建ぺい率
- 容積率
- 土地権利
- 所有権
- 構造および階数
- RC(鉄筋コンクリート) 造 地上7階建
- 総戸数
- 106戸
- 小学校区
- 桃山東 ( 1500m )
- 中学校区
- 桃山 ( 3200m )
- 私道負担
- 地目
- 現況
- 賃貸中
- 引渡時期
- 相談
- 駐車場
- 空有
- 上水道
- 公共
- 下水道
- 公共
- ガス
- 都市ガス
- 都市計画
- 管理形態
- 全部委託
- 管理方式
- 管理人常駐
- 用途地域
- 1種中高
- 設備・条件
- 洗浄便座、浴室乾燥機、追い焚き、床暖房、CATV、BS、CS、モニタ付インターホン、オートロック
- 備考
-
〈オーナーチェンジ物件〉
月額賃料:¥100,000
表面利回り:6.00%
- 取引態様
- 仲介

