マンション 向島ニュータウン 第3街区 E棟
所在地
京都市伏見区向島二ノ丸町
1,480万円
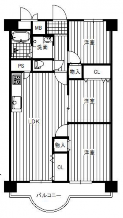
64.50m²
3LDK
◆11階建て最上階部分
◆2024年4月 改装済
月々の
支払例
支払例
万円
年
%
円
※京都銀行/借入金1,480万円、返済期間35年、金利0.775%変動金利)の場合
※審査により金利は変わる可能性があります。
物件概要
- 交通
-
近鉄京都線 向島駅 まで 徒歩6分
- 専有面積
- 壁芯 64.50㎡
- バルコニー
-
10.85㎡
(南側)
- 所在階/階数
- 11階/11階
- 築年数
-
1979年
(昭和54)
5月
築46年 - 建ぺい率
- 容積率
- 土地権利
- 所有権
- 構造および階数
- SRC(鉄骨鉄筋コンクリート) 造 地上11階建
- 総戸数
- 小学校区
- 向島秀蓮
- 中学校区
- 向島秀蓮
- 地目
- 現況
- 空
- 引渡時期
- 即時
- 駐車場
- 空無
- 駐車場月額
- 管理形態
- 自主管理
- 管理方式
- 管理会社
- 管理費
- 6,500円
- 修繕積立費
- 10,000円
- 上水道
- 公共
- 下水道
- 公共
- ガス
- 都市ガス
- 都市計画
- 市街化区域
- 用途地域
- 1種住居
- 設備・条件
- システムキッチン、食器洗浄乾燥機、シャンプードレッサー、洗浄便座、モニタ付インターホン
- 備考
-
《2024年4月 改装内容》
■新調:食洗器付きシステムキッチン、ユニットバス、給湯器、洗面化粧台、洗濯用水栓、防水パン、換気扇、
温水洗浄便座付きトイレ、建具(各部屋扉・各収納扉・SCL)、玄関タイル、ブレーカー、インターホン
■張替:全室フローリング、クロス、CF、居室天井ベニヤ
■ソフト巾木貼付 ■床スクラブ土間下地調整 ■廻縁木部塗装 ■ハウスクリーニング など - 取引態様
- 仲介

