中古一戸建て 京都市伏見区羽束師菱川町
所在地
京都市伏見区羽束師菱川町
1,950万円
29.98坪
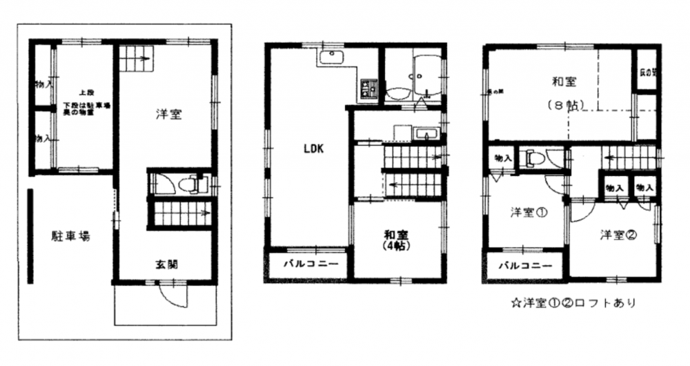
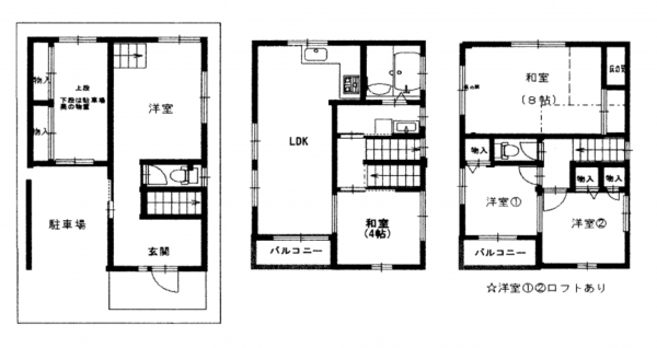
4LDK
◆駐車スペース有
◆南向き
◆コンビニ・スーパー徒歩圏内
ローソン 羽束師菱川店 徒歩10分(約700m)
セブン-イレブン 向日南金村店 徒歩12分(約900m)
新鮮激安市場 久我の杜店 徒歩14分(約1000m)
万代 羽束師店 徒歩15分(約1000m)
キリン堂 羽束師店 徒歩16分(約1100m)
京都南西病院 徒歩14分(約1000m)
伏見羽束師菱川郵便局 徒歩11分(約800m)
たんぽぽ保育園 徒歩10分(約750m)
月々の
支払例
支払例
万円
年
%
円
※京都銀行/借入金1,950万円、返済期間35年、金利0.775%変動金利)の場合
※審査により金利は変わる可能性があります。
物件概要
- 交通
-
阪急京都線 西向日駅 まで 徒歩25分
- 接道状況
- 南側 公道6m 間口約6m
- 土地面積
- 公簿 60.94㎡ (18.43坪)
- 建物面積
- 99.12㎡ (29.98坪)
- 築年数
-
1997年
(平成9)
11月
築28年 - 建ぺい率
- 60%
- 容積率
- 200%
- 土地権利
- 所有権
- 構造および階数
- 木造 地上3階建
- 小学校区
- 羽束師 ( 600m )
- 中学校区
- 神川 ( 650m )
- 私道負担
- 地目
- 宅地
- 現況
- 空
- 引渡時期
- 即時
- 駐車場
- 有
- 上水道
- 公共
- 下水道
- 公共
- ガス
- 都市ガス
- 都市計画
- 市街化区域
- 用途地域
- 準工業
- 設備・条件
- 備考
- 取引態様
- 仲介

