新築一戸建て 京都市伏見区桃山町弾正島2号地
所在地
京都市伏見区桃山町弾正島2号地
3,680万円
27.96坪
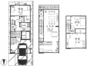
3LDK
◆京阪・近鉄利用可能
◆全居室6帖以上 収納スペース充実の3LDK
月々の
支払例
支払例
万円
年
%
円
※京都銀行/借入金3,680万円、返済期間35年、金利0.775%変動金利)の場合
※審査により金利は変わる可能性があります。
物件概要
- 交通
-
京阪本線 中書島駅 まで 徒歩8分
京阪宇治線 観月橋駅 まで 徒歩6分
近鉄京都線 桃山御陵前駅 まで 徒歩10分
- 接道状況
- 北側 公道4.4m 間口約4.9m
- 土地面積
- 公簿 67.69㎡ (20.47坪)
- 建物面積
- 92.44㎡ (27.96坪)
- 築年数
- 2026年 (令和8) 3月
- 建ぺい率
- 60%
- 容積率
- 200%
- 土地権利
- 所有権
- 構造および階数
- 木造 地上3階建
- 小学校区
- 伏見南浜 ( 400m )
- 中学校区
- 桃陵 ( 320m )
- 私道負担
- なし
- 地目
- 宅地
- 現況
- 建築中
- 引渡時期
- 相談
- 駐車場
- 有 1台
- 上水道
- 公共
- 下水道
- 公共
- ガス
- 都市ガス
- 都市計画
- 市街化区域
- 用途地域
- 1種住居
- 建築確認番号
- 第R07確認建築PLN奈支0252号
- 設備・条件
- システムキッチン、シャンプードレッサー、洗浄便座、モニタ付インターホン、トイレ2箇所
- 備考
-
・接道:北側幅員約4.41m~約4.78m
表題登記関連費用:110,000円(税込)、設計住宅性能評価書申請費用:110,000円(税込)別途要 - 取引態様
- 仲介

