中古一戸建て 京都市南区西九条大国町
所在地
京都市南区西九条大国町
2,780万円
27.43坪
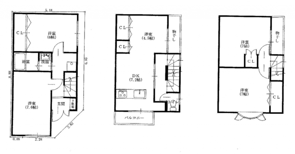
4LDK
◆近鉄京都線「東寺」駅まで徒歩約14分!
◆周辺施設充実!
◆学校に近い!徒歩圏内!
ローソン 京都南区役所前店 徒歩5分(約300m)
セブン-イレブン 唐橋芦辺町店 徒歩6分(約450m)
イオン京都洛南店 徒歩9分(約650m)
スーパーフレスコ 九条店 徒歩11分(約750m)
ウエルシアダックス京都唐橋経田店 徒歩5分(約350m)
光仁病院 徒歩7分(約500m)
京都羅城門郵便局 徒歩5分(約400m)
南保育所 徒歩7分(約500m)
月々の
支払例
支払例
万円
年
%
円
※京都銀行/借入金2,780万円、返済期間35年、金利0.775%変動金利)の場合
※審査により金利は変わる可能性があります。
物件概要
- 交通
-
近鉄京都線 東寺駅 まで 徒歩14分
- 接道状況
-
南側 公道6m 間口約5.1m
私道 - 土地面積
- 公簿 44.10㎡ (13.34坪)
- 建物面積
- 90.70㎡ (27.43坪)
- 築年数
-
1997年
(平成9)
5月
築28年 - 建ぺい率
- 70%
- 容積率
- 200%
- 土地権利
- 所有権
- 構造および階数
- 木造 地上3階建
- 小学校区
- 九条塔南 ( 350m )
- 中学校区
- 九条 ( 1000m )
- 私道負担
- なし 無
- 地目
- 宅地
- 現況
- 空
- 引渡時期
- 即時
- 駐車場
- 無
- 上水道
- 公共
- 下水道
- 公共
- ガス
- 都市ガス
- 都市計画
- 市街化区域
- 用途地域
- 準工業
- 設備・条件
- 備考
-
令和7年12月済
クロス全張替・トイレ CF 張替・網戸張替 IHコンロ新調
食洗機新調・インターホン新調・ハウスクリーン - 取引態様
- 仲介

